
ahbeck
EQUIPO DE PERFORACIÓN DE CIMIENTOS, última generación de A.H. Plataformas de perforación Beck.
MX$1000000.00
MODELO BECK 180

Base de excavadora CAT 330NG fabricada en EE. UU.
Sistema de control eléctrico sobre hidráulico con palancas de control auxiliares (operado por piloto)
Transporte de una sola carga
Accionamiento rotativo de alta resistencia con desconexiones rápidas
Controlado por consola de control eléctrico sobre hidráulica con palancas de control auxiliares
Anorramiento manual de palancas de control directo en funciones principales
Diseño europeo configurado para aplicaciones estadounidenses
Componentes de marca aceptados por la industria (p. ej. Motores hidráulicos Rexroth y cajas de engranajes planetarios Brevini)
9' - 6" de diámetro. Espacio libre de herramientas - Mástil delantero
Rieles de mástil sólidos para una mejor durabilidad
Contrapesos modulares
Tren de rodaje extensible
Conversión a mástil corto con simple eliminación de la sección superior del mástil y adición de una profundidad de perforación más corta de KB 78′
Vástago estandarizado de 8" (200 mm) en todos los modelos
BECK MODEL 250G

La máquina está equipada con un motor CAT C13 Tier 4 Final que entrega 323 HP, garantizando la fuerza necesaria para operar herramientas de perforación de gran diámetro en terrenos duros.
Torque máximo: 105,391 lb-ft
Velocidad rotatoria: 18–50 RPM
Crowd Force (fuerza de empuje):
Mástil estándar: 49,500 lbs
Mástil corto: 49,500 lbs
Fuerza del Winch principal: 49,500 lbs
Fuerza del Winch auxiliar: 16,200 lbs
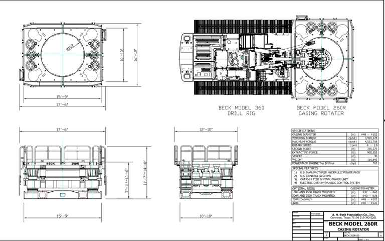
BECK MODEL 260R

Motor: Motor Industrial de Potencia (Tier IV Final) de 765 hp.
Fuente de Poder: U.S. Manufactured Hydraulic Power Pack.
Sistema de Control: Sistema de control hidráulico y eléctrico.
Especificación | Unidad | Valor |
Diámetro del Revestimiento | (in) | 648 - 1032 |
Torque Máximo | (lbf-ft) | 3,901,178 |
Torque de Trabajo | (lbf-ft) | 4,555,798 |
Fuerza de Retención (Holdback) | (lb) | 733,525 |
Fuerza de Empuje (Crowd) | (lb) | 265,225 |
Fuerza de Extracción | (lb) | 935,265 |
Peso Operativo | (lb) | 116,845 |
